04229 Leipzig, Laden zum Kauf
Kontaktdaten
-
NameHerr Mathias Egemann
-
PositionGeschäftsführer
-
FirmaDr. Krüger Immobilien Leipzig GmbH
-
AnschriftBrühl 48
04109 Leipzig -
E-Mail
-
Telefon
-
Fax+49 (0) 341 21 39 399
-
Website
Objektdaten
-
Objekt-IDDKI-K-3
-
ObjekttypenEinzelhandel, Laden
-
Adresse04229 Leipzig
Sachsen -
Wohnungsnummer1
-
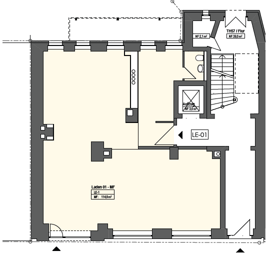
Verkaufsfläche ca.115,76 m²
-
Fensterfront10 m
-
HeizungsartZentralheizung
-
Letzte Modernisierung2015
-
Zustandneuwertig
-
Ausstattunggehoben
-
BodenbelagParkett, Fliesen
-
Statusvermietet
-
Käuferprovision3,57 % inkl. MwSt.
3,57% inkl. MwSt. -
Hausgeld599,85 EUR
-
Kaltmiete22.200 EUR
-
Kaufpreis pro m²3.887,00 EUR
-
Kaufpreis450.000 EUR
Ausstattung / Merkmale
- ✓ Abstellraum
- ✓ Barrierefrei
- ✓ Denkmalgeschützt
- ✓ Fliesenboden
- ✓ Gäste-WC
- ✓ Keller
- ✓ Parkettboden
- ✓ Personenaufzug
Energieausweis
-
EnergieausweistypVerbrauchsausweis
-
Ausstellungsdatum03.05.2024
-
Gültig bis02.05.2034
-
GebäudeartNichtwohngebäude
-
Endenergieverbrauch59,30 kWh/(m²·a)
-
Warmwasser enthaltenja
-
EnergieeffizienzklasseB
Objektbeschreibung
Beschreibung
Zum Verkauf gelangt eine äußerst charmante Ladeneinheit in der beliebten Karl-Heine-Straße, mitten im pulsierenden Szeneviertel Leipzig-Plagwitz. Hier trifft historische Architektur auf kreative Urbanität – ein Standort, der gleichermaßen Einheimische, Besucher und Unternehmer anzieht.
Die Einheit befindet sich im Erdgeschoss eines gepflegten Gründerzeithauses und besticht durch große Schaufensterfronten, die beste Sichtbarkeit und einladende Präsentationsmöglichkeiten bieten. Auf einer Fläche von 116 m² eröffnet sich ein vielseitig nutzbares Raumkonzept – ideal für Einzelhandel, Praxen, Galerie, Showroom, Café oder Dienstleistungsgewerbe. Helle Räume, hohe Decken und stilvolle Details unterstreichen den besonderen Charakter dieser Immobilie. Dank der hervorragenden Lage mit hohem Fußgängeraufkommen, der unmittelbaren Nähe zu gastronomischen Hotspots, kulturellen Einrichtungen und dem Karl-Heine-Kanal, ist hier eine nachhaltige Wertentwicklung zu erwarten.
Die Ladeneinheit ist seit September 2025 an ein renommiertes Gastronomieunternehmen vermietet. Mietvertragslaufzeit 5 Jahre + 5 Jahre Option.
Ausstattung
- erstklassige Lage in beliebtester Flaniermeile von Leipzig Plagwitz
- große, straßenseitige Fensterfront mit bester Sichtbarkeit
- flexible Nutzungsmöglichkeiten für vielfältige Geschäftskonzepte
- großer Verkaufsraum
- separate Umkleide und separater Lagerraum
- 2 separate Bad- bzw. WC-Bereiche
- Mietvertrag 5 Jahre + 5 Jahre Option
- solventer Mieter
- erstklassige Vermietbarkeit - hohe Wertbeständigkeit
Sonstiges
Dr. Krüger Immobilien Leipzig ist exklusiv mit dem Verkauf der Liegenschaft beauftragt. Gern stehen wir Ihnen mit ausführlichen Unterlagen, Informationen und zur Vereinbarung von Besichtigungen zur Verfügung. Bitte übermitteln Sie uns hierfür Ihre vollständigen Kontaktdaten inkl. telefonischer Erreichbarkeit. Wir freuen uns auf Ihre Anfrage.
Lage
Die angebotene Gewerbeeinheit befindet sich in attraktiver Lage in der Karl-Heine-Straße, einer der bekanntesten und lebendigsten Straßen im Leipziger Westen. Das Umfeld ist geprägt von einer gelungenen Mischung aus historischer Industriearchitektur und moderner Kreativszene. Zahlreiche Cafés, Restaurants, Galerien sowie individuelle Einzelhandelskonzepte sorgen für eine hohe Passantenfrequenz und ein urbanes Flair.
Die Anbindung an den öffentlichen Nahverkehr ist hervorragend. Straßenbahn- und Bushaltestellen befinden sich in fußläufiger Entfernung und gewährleisten eine schnelle Erreichbarkeit der Leipziger Innenstadt.
Die dargestellte Position der Immobilie ist nur eine ungefähre Angabe.





